€ 675.000,- k.k.
Soms kom je als makelaar in een woning, waar je zelfs als makelaar helemaal “stil” van wordt, zo bijzonder dat het is !
Dat is echt van toepassing voor deze karakteristieke benedenwoning met volwaardig souterrain aan de rand van het centrum van Nijmegen.
Deze woning is na aankoop door de huidige eigenaren enkele jaren geleden geheel in stijl met eersteklas materialen gerenoveerd met behoud van originele details. Op de begane grond vindt u de bijzonder sfeervolle entree met tochtdeur en hal, twee kamers en suite, eiken visgraat vloer, zeer fraaie open keuken en de toegang tot het balkon en de stadstuin. Het grote souterrain met 4 slaapkamers en een moderne, complete badkamer ligt op tuinniveau.
Deze prachtige woning is gelegen op loopafstand van het centrum en gezellige horeca, terwijl de stadsschouwburg en concertgebouw De Vereeniging, ziekenhuizen, universiteit en HAN ook snel bereikbaar zijn.
Indeling:
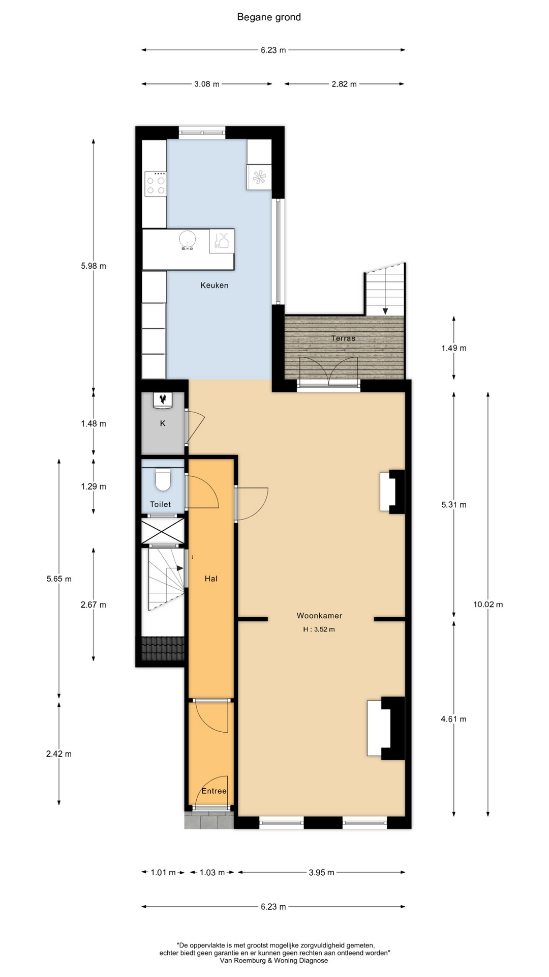
Begane grond:
Entree/tochtportaal, zeer sfeervolle hal met authentieke plavuizen vloer, toegang tot de trap naar het riante souterrain, toilet, riante woonkamer met diverse authentieke schouwen, open haard, visgraat parketvloer, openslaande deuren met toegang tot het balkon en de achtertuin die middels een trap bereikbaar is, schitterende nieuwe luxe open keuken met marmeren blad en diverse inbouwapparatuur. 
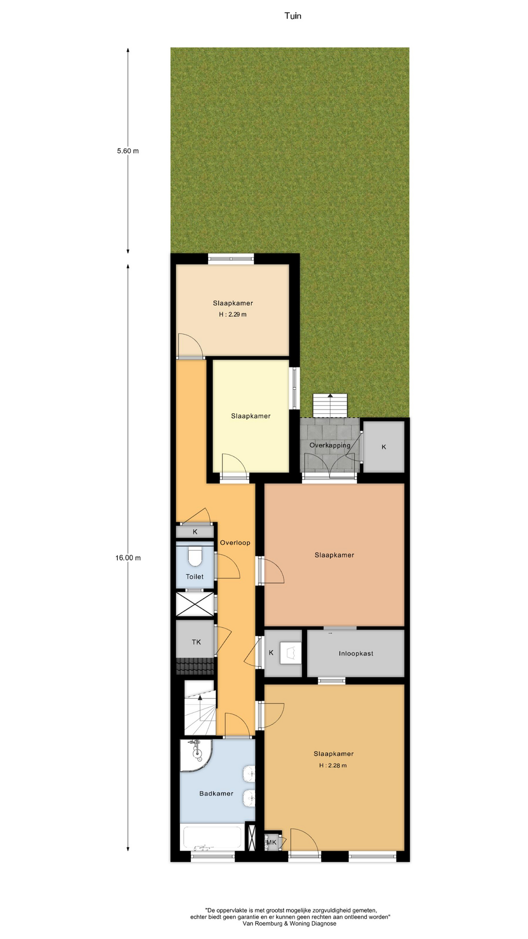
Souterrain:
Overloop/gang met toegang tot de badkamer voorzien van een ligbad, douche en 2 wastafels, separaat toilet, diverse bergruimten en wasruimte, 4 slaapkamers, waarvan één met een inloopkast en met toegang tot de achtertuin. 
Algemeen:
– Gebruiksoppervlakte wonen circa 152 m², inhoud circa 685 m³.
– Voorzien van een voortuin, balkon en achtertuin.
– Warm water en verwarming middels een NEFIT HR combi-ketel uit 2020.
– Er is een VvE met een gezamenlijke opstalverzekering.
- 152 m2
- 4
Kenmerken Pontanusstraat 21
Overdracht
| Vraagprijs | € 675.000,- k.k. | 
|---|---|
| Aanvaarding | In overleg | 
Oppervlaktes en inhoud
| Woonoppervlakte | 152 m2 | 
|---|---|
| Inhoud | 685 m3 | 
Bouw
| Soort | Benedenwoning | 
|---|---|
| Bouwvorm | Bestaande bouw | 
| Bouwjaar | 1897 | 
| Dak type | Zadeldak | 
| Isolatievormen | Dubbelglas | 
| Energielabel | B | 
Indeling
| Aantal verdiepingen | 2 | 
|---|---|
| Aantal kamers | 5 | 
| Aantal slaapkamers | 4 | 
| Aantal badkamers | 1 | 
Maandlasten
Ligging Pontanusstraat 21
Voorzieningen
Centraal gelegen informatie over de buurt
Aantal inwoners
In de gemeente
173.557
Leeftijd
in percentages van totaal
Huishoudsamenstelling
in percentages van totaal
72%
20% NL
16%
20% NL
12%
20% NL
 
                             
                             
                             
                             
                             
                             
                             
                             
                             
                             
                             
                             
                             
                             
                             
                             
                             
                             
                             
                             
                             
                             
                             
                             
                             
                             
                             
                             
                             
                             
                             
                             
                             
                             
                             
                             
                             
                                 
                                 
                                 
                                 
                                 
                                 
                                 
                                 
                                 
                                 
                                 
                                 
                                 
                                 
                                 
                                 
                                 
                                 
                                 
                                 
                                 
                                 
                                 
                                 
                                 
                                 
                                 
                                 
                                 
                                 
                                 
                                 
                                 
                                 
                                 
                                 
                                 
                                 
                                 
                                 
                                 
                                 
                                 
                                     
                                     
                                     
                                     
                                     
                                     
                                                             
                             
                             
                             
                             
             
             
             
             
            