Ga naar inhoud

Te koop: woonhuis Hend de Kleijnstraat 11 6611 CJ Overasselt

Claase Garantiemakelaars in Malden
Neem contact met mij op

Verkocht

€ 350.000,- k.k.

Wij bieden u een nette geschakelde twee-onder-een-kap seniorenwoning (55+) op een zeer goede locatie met 3 slaapkamers en 2 badkamers.

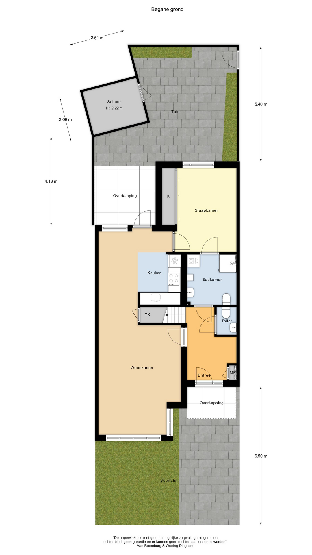
Indeling: Ruime entree met meterkast, een toilet en een lichte woonkamer met een plavuizen vloer. De open keuken is voorzien van diverse inbouwapparatuur. Achter de woonkamer is een aangebouwde overkapping, waar u heerlijk overdekt kunt genieten van het buitenleven.
Op de begane grond bevindt zich ook een slaapkamer met aangrenzende ruime badkamer met een wastafel, een radiator, een douche, een tweede toilet en witgoedaansluiting.
De eerste verdieping biedt een kleine overloop met een vliering voor extra opslagruimte. Hier bevinden zich 2 slaapkamers die ook uitstekend gebruikt kunnen worden als hobbyruimtes of voor andere doeleinden. Daarnaast is er een 2e badkamer met een douche en wastafel.

De woning heeft een voortuin met een oprit, geschikt voor het parkeren van een auto. De achtertuin is voorzien van een stenen schuur en een houten tuinhuisje, ideaal voor opslag van o.a. fietsen of tuingereedschap. Verder beschikt de tuin over een terras en een achterom, waardoor de tuin gemakkelijk bereikbaar is.

Een bijzonder pluspunt is dat de benedenverdieping volledig rolstoeltoegankelijk is, dankzij de extra brede buiten- en binnendeuren en het ontbreken van dorpels, waardoor het wonen hier bijzonder comfortabel en toegankelijk is.

Kortom, deze seniorenwoning biedt alles wat u zoekt!

Bijzonderheden:
Senioren 55+ (één van de kopers moet 55+ zijn)
Woning maakt deel uit van een niet actieve VvE.
Energielabel A

Overasselt is een trots onderdeel van de gemeente Heumen.
Het is een prachtig dorp, aan de ene kant stroomt de Maas met zijn uitgestrekte uiterwaarden en aan de andere kant liggen de Overasseltse en Hatertse vennen. Door de vele fiets- en wandelpaden is dit unieke natuurgebied uitstekend toegankelijk. Nijmegen en A73/A50 liggen op korte afstand. Het dorp telt ca. 2700 inwoners. Alle voorzieningen: basisschool, verscheidene winkels, bibliotheek, huisarts, tandarts en fysiotherapie zijn aanwezig. Overasselt heeft een actief verenigingsleven, sporthal/sportvelden en een verenigingsgebouw.

  • 92 m2
  • 3

Kenmerken Hend de Kleijnstraat 11

Overdracht

Vraagprijs€ 350.000,- k.k.
AanvaardingIn overleg

Oppervlaktes en inhoud

Woonoppervlakte92 m2
Inhoud338 m3

Bouw

SoortEengezinswoning
BouwvormBestaande bouw
Bouwjaar1999
Dak typeZadeldak
IsolatievormenDakisolatie, Muurisolatie, Vloerisolatie, Dubbelglas
EnergielabelA

Indeling

Aantal verdiepingen3
Aantal kamers4
Aantal slaapkamers3
Aantal badkamers2

Maandlasten

Ligging Hend de Kleijnstraat 11

Voorzieningen

Centraal gelegen informatie over de buurt

Aantal inwoners

In de gemeente

16.475

Leeftijd

in percentages van totaal

Huishoudsamenstelling

in percentages van totaal

30%

20% NL

38%

20% NL

32%

20% NL

Vergelijkbaar woningaanbod