€ 525.000,- k.k.
Royale twee-onder-één-kap Bossche School woning op een gewéldige plek!
In een rustige, kindvriendelijke wijk en op loopafstand van het bos ligt deze royale twee-onder-één-kapwoning met mogelijkheid tot 4 slaapkamers en een ruime, zonnige zij- en achtertuin. Deze sfeervolle woning, gebouwd in de karakteristieke “Bossche School”-stijl, bevindt zich in een geliefde buurt van Molenhoek. De ligging is ideaal: op korte afstand van een basisschool, kinderdagverblijf, winkelcentrum en het NS-station “Mook-Molenhoek”.
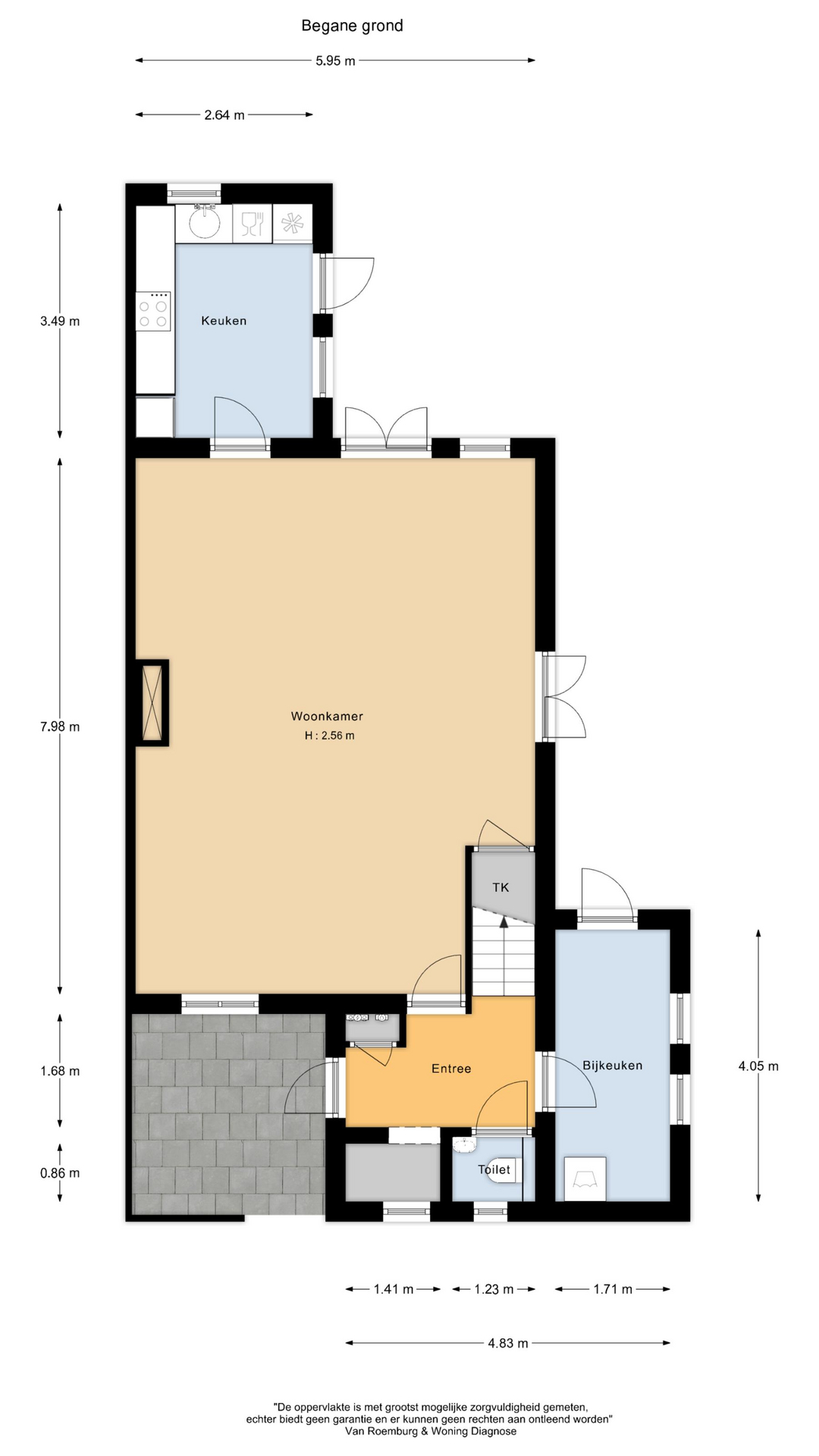
Begane grond:
Entree/hal met garderobe, toilet, meterkast en toegang tot de aangebouwde berging. De royale woonkamer (ca. 45 m²) beschikt over dubbele openslaande deuren naar de achtertuin en dubbele openslaande deuren naar de zijtuin. De dichte keuken beschikt over het originele zeer verzorgde keukenblok voorzien van (moderne) inbouwapparatuur.
Eerste verdieping:
Overloop, eenvoudige badkamer met ligbad, inloopdouche, dubbele wastafel en toilet. Op deze verdieping bevinden zich 2 ruime slaapkamers (voorheen 3 en eenvoudig weer te herstellen).  
Tweede verdieping:
Open zolder met dakkapel, CV-opstelling en wasmachineaansluiting. Hier is ruimte om een royale 4e slaapkamer te creëren.
De woning beschikt over een fraai aangelegde achter- en zijtuin met diverse terrassen, veel groen en een achterom. Aan de voorzijde ligt een autovrij hofje, waardoor de woning extra kindvriendelijk is. Uiteraard zijn er eveneens zonnepanelen aanwezig (10 stuks uit 2023).
Molenhoek biedt uitstekende verbindingen met het openbaar vervoer, met een bushalte en NS-station op slechts twee minuten loopafstand. De A73 is binnen enkele minuten bereikbaar, waardoor steden zoals Nijmegen en Venlo vlot te bereiken zijn. Op loopafstand bevinden zich een basisschool, een winkelcentrum en prachtige natuurgebieden zoals de Mookerheide, Sint Jansberg, recreatiegebied de Mookerplas en de Maas.
Kortom, een ruim, sfeervol huis op een toplocatie met alle voorzieningen én natuur binnen handbereik!
- 147 m2
- 340 m2
- 4
Kenmerken De Hazelaar 21
Overdracht
| Vraagprijs | € 525.000,- k.k. | 
|---|---|
| Aanvaarding | In overleg | 
Oppervlaktes en inhoud
| Perceel oppervlakte | 340 m2 | 
|---|---|
| Woonoppervlakte | 147 m2 | 
| Inhoud | 503 m3 | 
Bouw
| Soort | Eengezinswoning | 
|---|---|
| Bouwvorm | Bestaande bouw | 
| Bouwjaar | 1977 | 
| Dak type | Zadeldak | 
| Isolatievormen | Dakisolatie, Dubbelglas | 
| Energielabel | C | 
Indeling
| Aantal verdiepingen | 3 | 
|---|---|
| Aantal kamers | 5 | 
| Aantal slaapkamers | 4 | 
| Aantal badkamers | 1 | 
Maandlasten
Ligging De Hazelaar 21
Voorzieningen
Centraal gelegen informatie over de buurt
Aantal inwoners
In de gemeente
7.775
Leeftijd
in percentages van totaal
Huishoudsamenstelling
in percentages van totaal
27%
20% NL
36%
20% NL
36%
20% NL
 
                             
                             
                             
                             
                             
                             
                             
                             
                             
                             
                             
                             
                             
                             
                             
                             
                             
                             
                             
                             
                             
                             
                             
                             
                             
                             
                             
                                 
                                 
                                 
                                 
                                 
                                 
                                 
                                 
                                 
                                 
                                 
                                 
                                 
                                 
                                 
                                 
                                 
                                 
                                 
                                 
                                 
                                 
                                 
                                 
                                 
                                 
                                 
                                 
                                 
                                 
                                 
                                 
                                 
                                 
                                 
                                 
                                 
                                     
                                     
                                     
                                     
                                     
                                     
                                     
                                     
                                     
                                     
                                                             
                             
                             
                             
                             
             
             
             
             
            