Ga naar inhoud

Te koop: woonhuis Stollenbergweg 65 6571 AB Berg En Dal

Claase Garantiemakelaars in Malden
Neem contact met mij op

Verkocht

€ 575.000,- k.k.

Heerlijk wonen aan de bosrand – met souterrain en gunstig gelegen tuin met garage.

Stollenbergweg 65 – Berg en Dal

Aan een rustige, groene straat op een prachtige plek aan de bosrand ligt deze gemoderniseerde twee-onder-een-kapwoning met vrijstaande garage en diepe zonnige achtertuin (zuidwest). Hier woon je in alle rust, maar toch dichtbij de stad: op loopafstand van de bossen en binnen tien fietsminuten in hartje Nijmegen.

De woning is verzorgd, voorzien van een keurige afwerking én een verrassend ruime, compleet ingerichte kelderverdieping met slaapkamer. Ideaal voor logés, tieners, of als werk- of hobbyruimte.

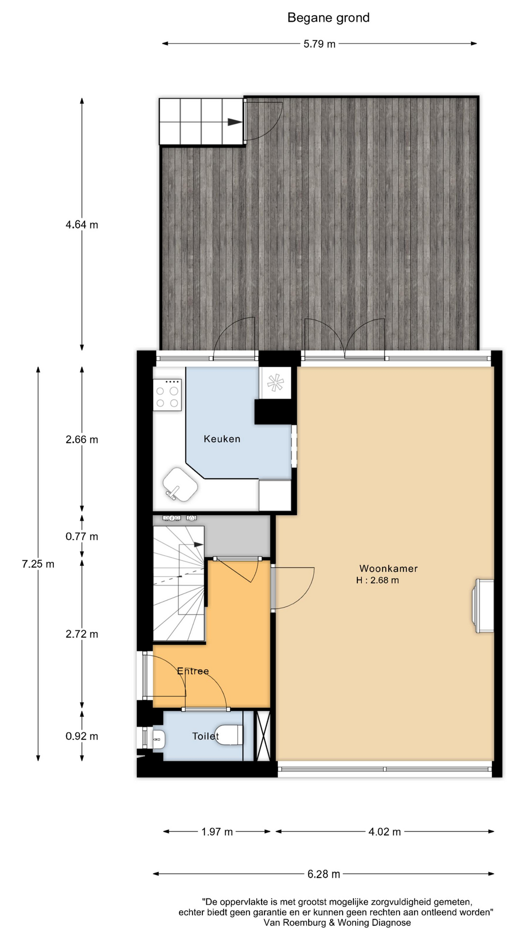
Begane grond:
Entree, hal met toilet, toegang tot de kelderverdieping (garderobe). De lichte doorzon woonkamer heeft openslaande deuren naar de tuin/terras. De dichte keuken (2008) is voorzien van diverse inbouwapparatuur en biedt eveneens toegang tot de tuin.

Eerste verdieping:
Overloop, twee slaapkamers, waarvan één met toegang tot het balkon aan de achterzijde. De kamer aan de achterzijde heeft een vide en vliering met toegang tot een bergzolder. De badkamer op deze verdieping beschikt over een douche, vaste wastafel en een toilet. Daarnaast is de voormalige douche ingericht als bergruimte.

Souterrain:
Volledig gemoderniseerd en verrassend ruim! Bestaande uit een kelderruimte met witgoedaansluitingen, een aangrenzende ruimte waar een fraaie slaapkamer is gerealiseerd een comfortabele, volwaardige ruimte met daglicht, verwarming en een moderne afwerking. Ideaal als logeerkamer, thuiswerkplek, aan de achterzijde van deze kamer is een inloopkast/bergruimte gelegen.

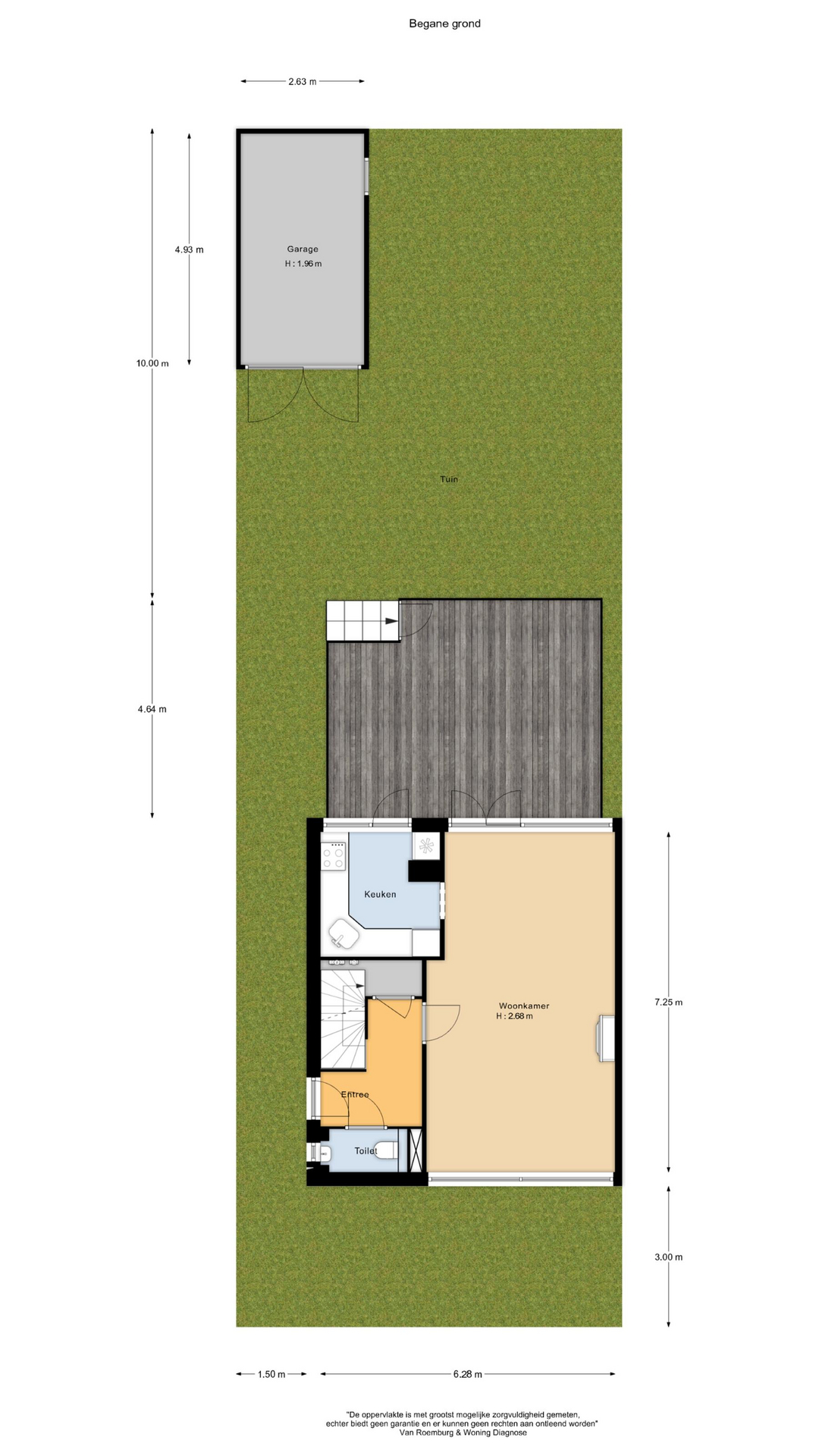
Tuin:
De achtertuin is royaal, perfect op de zon (zuidwest) en biedt volop privacy. Achterin de tuin bevindt zich een vrijstaande stenen garage, uiteraard bereikbaar via een oprit met parkeren op eigen terrein.

Kenmerken:

* Perceeloppervlakte: 269 m²
* Woonoppervlakte: ca. 119 m²
* Inpandige ruimte (souterrain): volledig afgewerkt en in gebruik als slaapkamer
* Inhoud: ca. 407 m³
* Diepe zonnige tuin en vrijstaande garage
* Bosrijke woonomgeving op steenworp van Nijmegen

Zoek je een top locatie met rust én ruimte? Dan is dit er absoluut één om te komen bekijken. We laten je graag alles zien.

  • 119 m2
  • 269 m2
  • 3

Kenmerken Stollenbergweg 65

Overdracht

Vraagprijs€ 575.000,- k.k.
AanvaardingIn overleg

Oppervlaktes en inhoud

Perceel oppervlakte269 m2
Woonoppervlakte119 m2
Inhoud407 m3

Bouw

SoortEengezinswoning
BouwvormBestaande bouw
Bouwjaar1950
Dak typeZadeldak
IsolatievormenDakisolatie, Muurisolatie, Vloerisolatie, Dubbelglas
EnergielabelC

Indeling

Aantal verdiepingen4
Aantal kamers4
Aantal slaapkamers3
Aantal badkamers1

Maandlasten

Ligging Stollenbergweg 65

Voorzieningen

Centraal gelegen informatie over de buurt

Leeftijd

in percentages van totaal

Huishoudsamenstelling

in percentages van totaal

44%

20% NL

27%

20% NL

29%

20% NL

Vergelijkbaar woningaanbod