Ga naar inhoud

Te koop: woonhuis De Zoom 3 6581 DZ Malden

Claase Garantiemakelaars in Malden
Neem contact met mij op

Verkocht

€ 1.000.000,- k.k.

Wilt u wonen op de wellicht allermooiste lokatie van Malden?

Dan bent u op de Zoom 3 naar onze mening op het juiste adres !

Deze royale, vrijstaande woning met garage is heerlijk rustig in een kleinschalige en intieme villawijk in Malden gelegen, op een steenworp afstand van natuurgebied de Heemtuin en het uitgestrekte Heumensoord. Hier geniet je van de rust en de natuur, terwijl alle voorzieningen zoals winkels, restaurants, sportfaciliteiten en een gezellige bioscoop binnen handbereik zijn. Bovendien liggen de ziekenhuizen en de hogeschool/universiteit van Nijmegen op korte afstand.

De woning heeft een speelse indeling en biedt veel licht en ruimte. De sfeervolle woonkamer met een apart eetgedeelte is royaal opgezet. De ruime woon- en slaapvertrekken zorgen voor optimaal comfort, terwijl de tuin je volledige privacy biedt.

Indeling:
Entree met tochtportaal, meterkast, doorgang naar de ruime inpandige garage, centrale hal met toilet (voorzien van fontein), royale woonkamer met een hoog plafond, sfeervolle open haard en een plavuizen vloer. Via grote ramen kijk je uit op de prachtig aangelegde tuin. Aangrenzend vind je de eetkamer, waar de grote glazen pui zorgt voor een directe verbinding met de achtertuin. De woonkamer is voorzien van vloerverwarming en convectorputten. De halfopen keuken is van alle gemakken voorzien, inclusief diverse inbouwapparatuur. De praktische bijkeuken biedt extra bergruimte, aansluitingen voor witgoed en toegang tot de CV-ruimte en de ruime kelder van maar liefst 22 m². Vanuit de hal bereik je ook een ruime slaapkamer met aangrenzende badkamer, voorzien van toilet, wastafel en douche. Ideaal voor wie gelijkvloers wil wonen. Eerste verdieping; Overloop met toegang tot 3 ruime slaapkamers en een badkamer met douche, ligbad en vaste wastafel.

Tuin
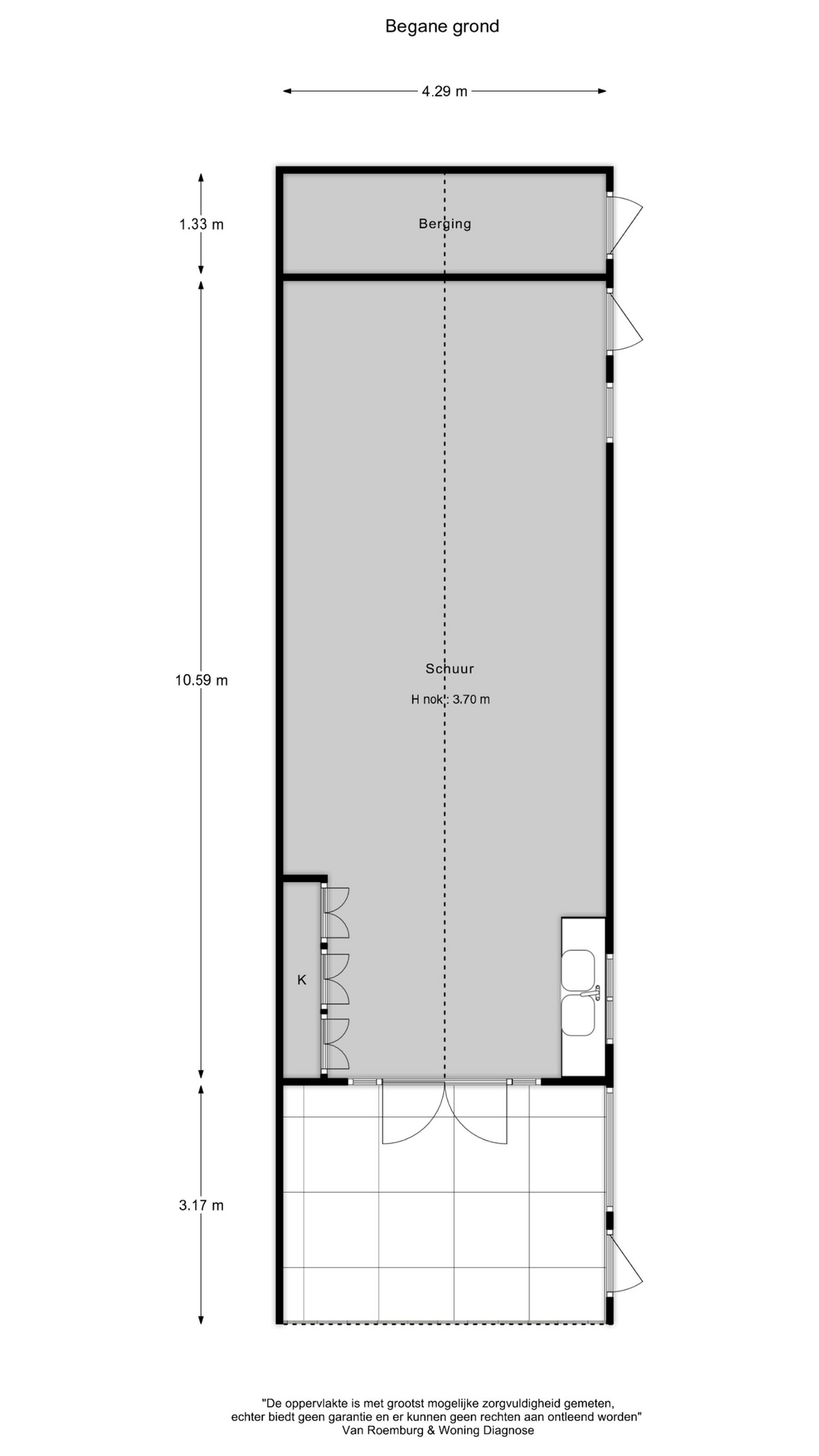
De rondom gelegen tuin is fraai onderhouden, biedt volledige privacy en sluit naadloos aan op de natuurlijke omgeving. Verschillende terrassen, een gazon en diverse bomen en beplanting zorgen voor een rustige en groene sfeer. Links achterin de tuin staat een ruime, vrijstaande berging met overkapping, perfect als opslag- of hobbyruimte. Daarnaast is er nog een tweede houten tuinberging.

Op het dak liggen 11 zonnepanelen, die bijdragen aan lagere energiekosten.

Bijzonderheden: Bouwjaar 1977. Woonoppervlakte exclusief garage en kelder ca. 209 m². Inpandige ruimten: Garage 25 m², kelder 22 m². Perceeloppervlak 818 m². Energielabel C, geldig tot 2034.

  • 209 m2
  • 818 m2
  • 4

Kenmerken De Zoom 3

Overdracht

Vraagprijs€ 1.000.000,- k.k.
AanvaardingIn overleg

Oppervlaktes en inhoud

Perceel oppervlakte818 m2
Woonoppervlakte209 m2
Inhoud885 m3

Bouw

SoortEengezinswoning
BouwvormBestaande bouw
Bouwjaar1977
Dak typeSamengesteld dak
IsolatievormenDakisolatie, Muurisolatie, Dubbelglas
EnergielabelC

Indeling

Aantal verdiepingen2
Aantal kamers6
Aantal slaapkamers4
Aantal badkamers2

Maandlasten

Ligging De Zoom 3

Voorzieningen

Centraal gelegen informatie over de buurt

Aantal inwoners

In de gemeente

16.475

Leeftijd

in percentages van totaal

Huishoudsamenstelling

in percentages van totaal

29%

20% NL

36%

20% NL

34%

20% NL

Vergelijkbaar woningaanbod