€ 800,- p/m
Op de 1e verdieping van een aansprekend pand gelegen 2 kamer appartement.
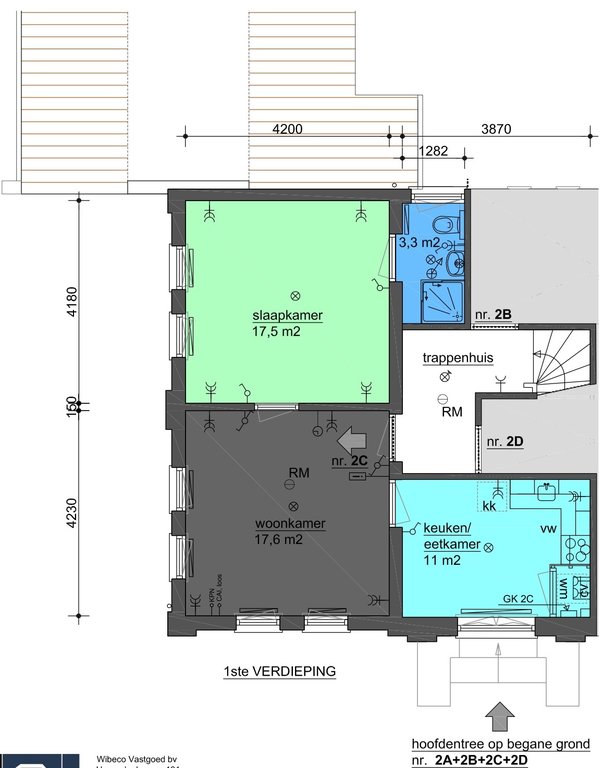
Via de centrale entree en het trappenhuis bereikt u het appartement op de 1e verdieping.
Indeling: Entree/woonkamer van 17.6 m2, woonkeuken van 11 m2 met wasmachine/CV ruimte, slaapkamer van 17.5 m2 met aangrenzende badkamer met douche, toilet en vaste wastafel.
Servicekosten €85,= per maand
Borg € 1350,=
Electra, Gas en water op naam van huurder
Ruime parkeergelegenheid aanwezig op eigen terrein.
- 48 m2
- 1
Kenmerken Augustinusweg 2c
Overdracht
| Huurprijs | € 800,- p/m | 
|---|---|
| Aanvaarding | Per datum | 
Oppervlaktes en inhoud
| Woonoppervlakte | 48 m2 | 
|---|---|
| Inhoud | 120 m3 | 
Bouw
| Soort | Bovenwoning | 
|---|---|
| Bouwvorm | Bestaande bouw | 
| Bouwjaar | 1901 | 
| Dak type | Zadeldak | 
| Energielabel | B | 
Indeling
| Aantal verdiepingen | 1 | 
|---|---|
| Aantal kamers | 2 | 
| Aantal slaapkamers | 1 | 
| Aantal badkamers | 1 | 
 
                             
                             
                             
                             
                             
                             
                             
                             
                             
                                 
                                 
                                 
                                 
                                 
                                 
                                 
                                 
                                 
                                 
                                     
                                                             
                             
                             
                             
                            