Ga naar inhoud

Kerkenbos 1056

6546 BA Nijmegen

Claase Garantiemakelaars in Malden
Neem contact met mij op

Verkocht

€ 169.500,- k.k.

  1. Home>
  2. Bedrijfspanden>
  3. Koop Nijmegen Kerkenbos 1056

Op kantoren- en bedrijvenpark Kerkenbos fraai gelegen moderne nieuw gebouwde bedrijfsunit.

Deze unit ligt op een kleinschalig Business Center dat gerealiseerd is op bedrijventerrein Kerkenbos, de buurman van het grootschalige terrein Bijsterhuizen, dat op de grens van de Gemeenten Nijmegen en Wijchen gelegen. Deze gemeenten tellen samen ruim 215.000 inwoners. Samen met Bijsterhuizen is Kerkenbos met ruim 250 hectare het grootste Gelderse bedrijventerrein en ligt ideaal tussen de Randstad en Duitsland. Het bedrijvenpark onderscheidt zich in kwalitatief opzicht van andere bedrijvenparken door de ruimtelijke kwaliteit en de grote aandacht voor architectuur en groen. Veel hoogwaardige bedrijven in de sectoren industrie, handel en logistiek zijn reeds op deze terreinen gevestigd.

In totaal zijn er 18 fraaie bedrijfseenheden gerealiseerd.,

De gevel is opgetrokken uit metselwerk en voorzien van prachtige raampartijen. De unit is voorzien van een een overheaddeur, een separate entreedeur en een toiletunit.

Kerkenbos is een (zeer) ruim opgezet park waar een grote verscheidenheid aan exploitaties zijn gehuisvest. Zo zijn er naast kantoorgebruikers, zoals accountantskantoren, financiële dienstverleners, marketingkantoren, zorgpartijen tevens kleinschalige bedrijfsunits in combinatie met kantoorfaciliteiten gehuisvest op Kerkenbos. Kerkenbos ligt zeer cenraal en goed bereikbaar nabij de Brabantse Poort, alsmede NS- en busstation Dukenburg. Tevens is op loopafstand van Nijmeegs grootste overdekte winkelcentrum, Winkelcentrum Dukenburg, gelegen.

Per auto uitstekend bereikbaar via A73 (Venlo/Boxmeer/Köln), via N326/A326 en A50 (‘s-Hertogenbosch/Apeldoorn/Arnhem), daardoor is er tevens een goede verbinding met het Ruhrgebied en de Randstad.

Op circa 5 à 10 minuten loopafstand bevindt zich trein- en busstation Nijmegen Dukenburg, beiden met een rechtstreekse aansluiting op NS Station Nijmegen Centraal.

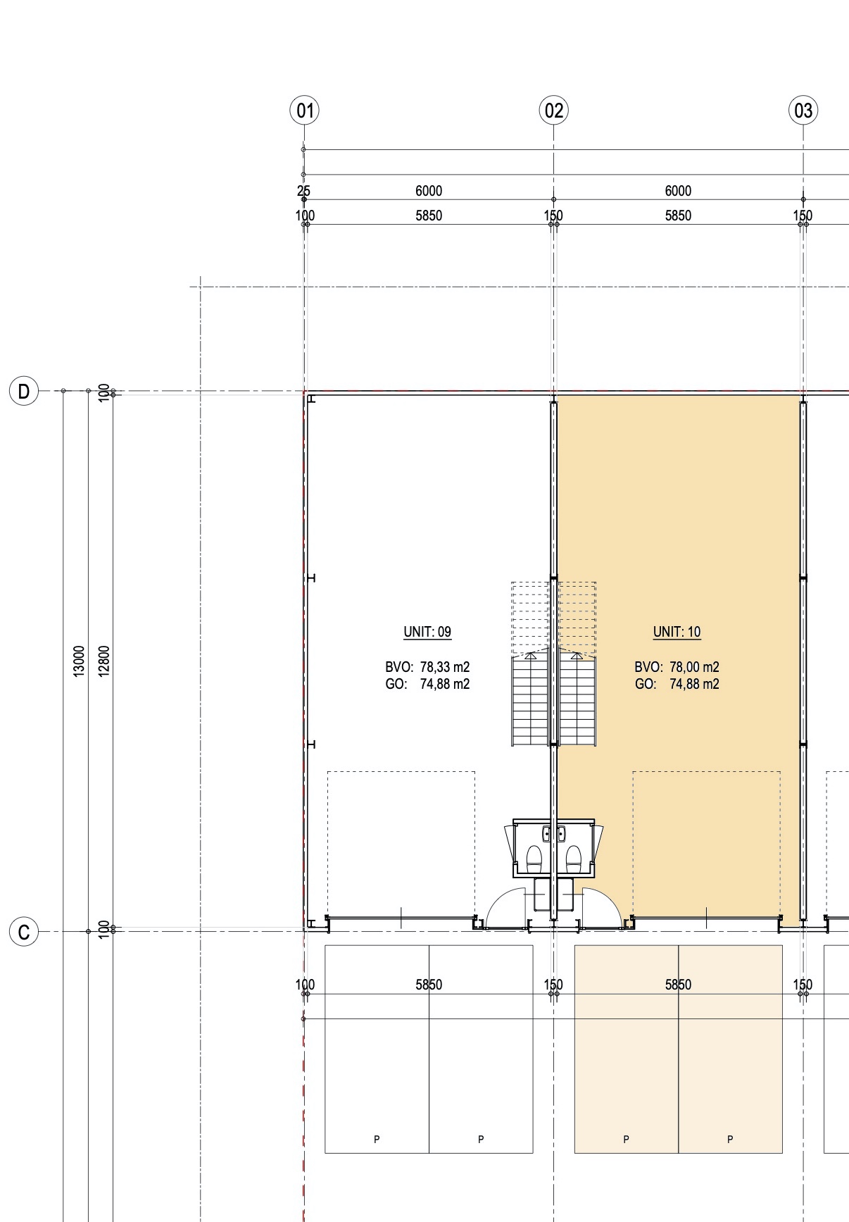
Indeling:
Entree, bedrijfsruimte op de begane grond met een oppervlakte van plm. 75 m2 (V.V.O.) voorzien van een toilet, opgang naar de nog vrij in te delen eerste verdieping met een oppervlakte van eveneens plm. 75 m2 (V.V.O.).

2 eigen parkeerplaatsen voor de deur.

De unit wordt opgeleverd met toilet, meterkast en trap naar de verdieping.

  • 156 m2
  • 2.935 m2

Kenmerken Kerkenbos 1056

Overdracht

StatusVerkocht
Prijs€ 169.500,- k.k.
AanvaardingIn overleg

Oppervlaktes en inhoud

Soort ObjectBedrijfsruimte
Oppervlakte156 m2
Perceeloppervlakte2.935 m2
Vloerbelasting1.200 kg p. m2
Bedrijfshal vrije hoogte370 cm

Parkeergelegenheid

Geen eigenschappen

Bouw

BouwvormBestaande bouw
Bouwjaar2020
Bouwjaar toelichting

Overig

Bedrijfshal in units vanaf156 m2
LocatieBEDRIJVENTERREIN
Onderhoud binnenUitstekend
Onderhoud buitenUitstekend

Ligging Kerkenbos 1056

Vergelijkbaar bedrijfsaanbod