Ga naar inhoud

Lange Beijerd 12

5431 SJ Cuijk

Beschikbaar

Bezichtiging plannen

€ 695.000,- k.k.

  1. Home>
  2. Bedrijfspanden>
  3. Koop Cuijk Lange Beijerd 12

Bijzonder fraai bedrijfspand op een perfecte lokatie aan een doorgaande weg nabij de oprit naar de A 73/A 77 gelegen.

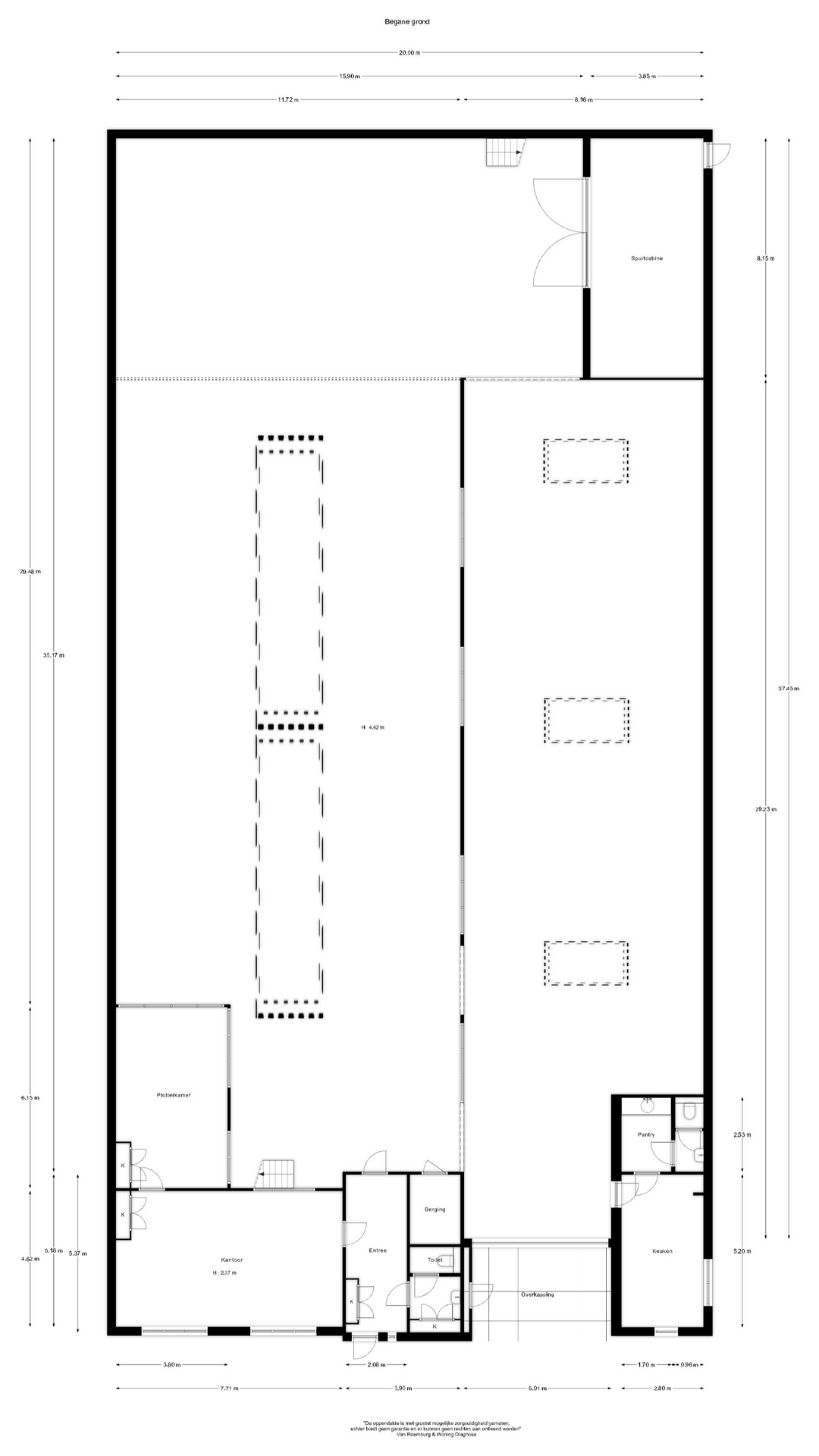
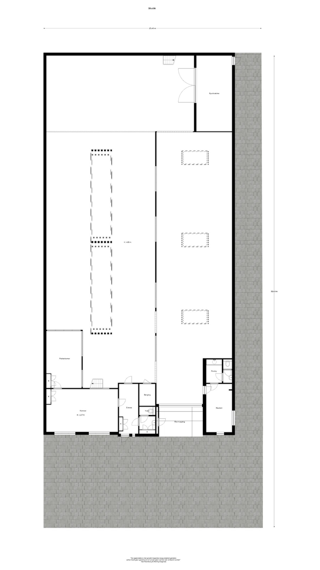
Het betreft een keurig nette bedrijfsruimte ter grootte van in totaal plm. 823 m2 BVO, bestaande uit een
kantoorgedeelte aan de voorzijde met een oppervlakte van plm. 41 m2 en een bedrijfsgedeelte van plm. 782 m2. Tevens is de hal nog voorzien van een spuitcabine. De kantoorruimte is voorzien van een loopdeur, de hal van een expeditiedeur aan de voorzijde.

Het geheel is zeer goed te bereiken door de vrijwel directe aansluiting op de A73 en A50. Ook met openbaar vervoer is het geheel goed bereikbaar. Voorzien van goede Installaties en voorzieningen.

Aan de voorzijde voorzien van eigen parkeerplaatsen (6).

  • 793 m2
  • 1.208 m2

Kenmerken Lange Beijerd 12

Overdracht

StatusBeschikbaar
Prijs€ 695.000,- k.k.
AanvaardingDirect

Oppervlaktes en inhoud

Soort ObjectBedrijfsruimte
Oppervlakte793 m2
Perceeloppervlakte1.208 m2
Vloerbelasting2.500 kg p. m2
Bedrijfshal vrije hoogte462 cm

Parkeergelegenheid

Parkeerplaatsen6

Bouw

BouwvormBestaande bouw
Bouwjaar1989
Bouwjaar toelichting

Overig

Bedrijfshal in units vanaf793 m2
LocatieBEDRIJVENTERREIN
Aantal lagen1
Onderhoud binnenGoed
Onderhoud buitenGoed

Ligging Lange Beijerd 12

Vergelijkbaar bedrijfsaanbod