Ga naar inhoud

Bolder 3b

6582 BZ Heumen

Claase Garantiemakelaars in Malden
Neem contact met mij op

Verhuurd

€ 5.000,- p.m

  1. Home>
  2. Bedrijfspanden>
  3. Huur Heumen Bolder 3b

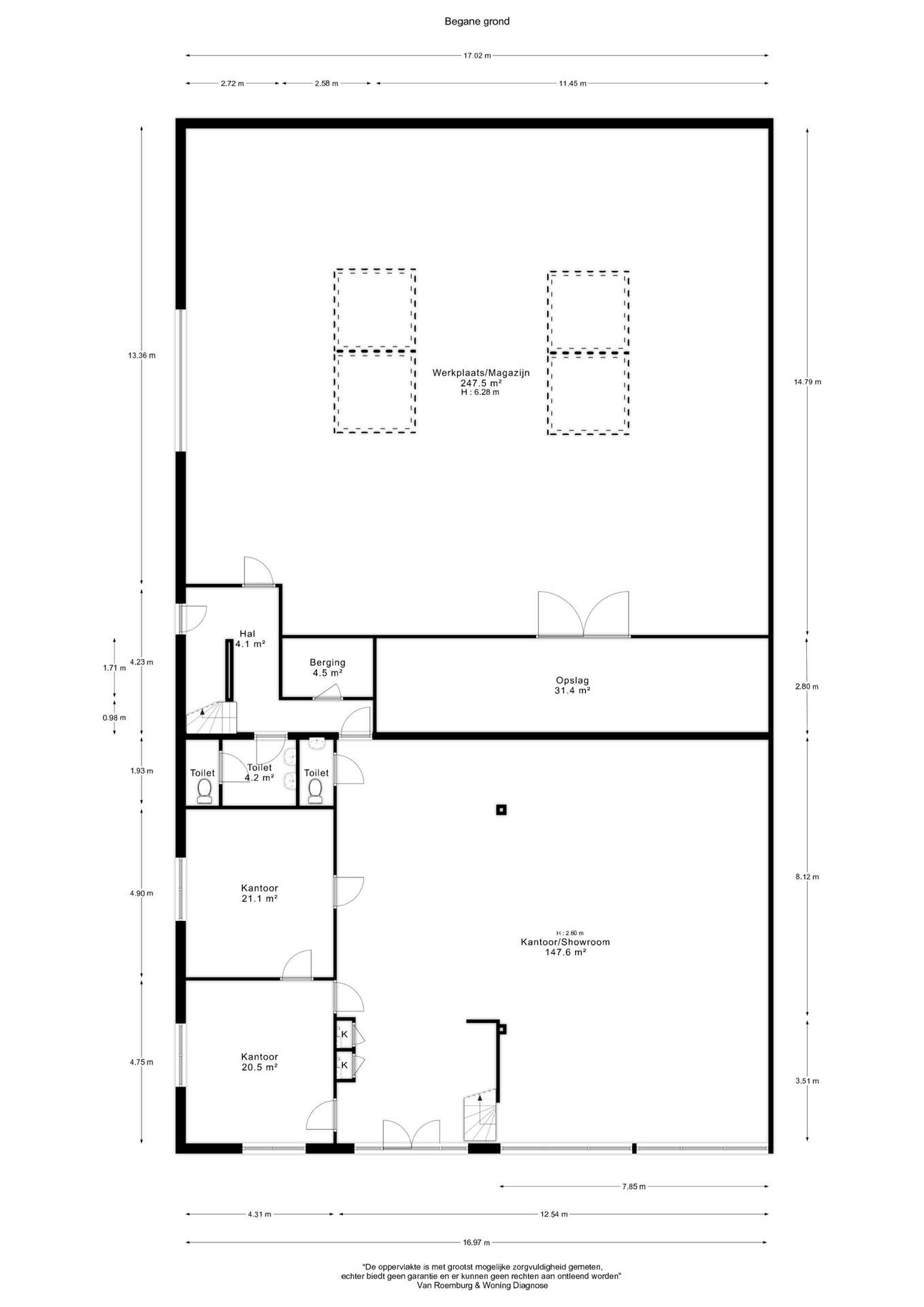
Bijzonder fraai bedrijfs-/kantoorpand te huur met eigen parkeergelegenheid en een verhuurbare oppervlakte (V.V.O.) van in totaal plm. 733 m2.

Aan de voorzijde zijn 7 parkeerplaatsen op eigen terrein gelegen.

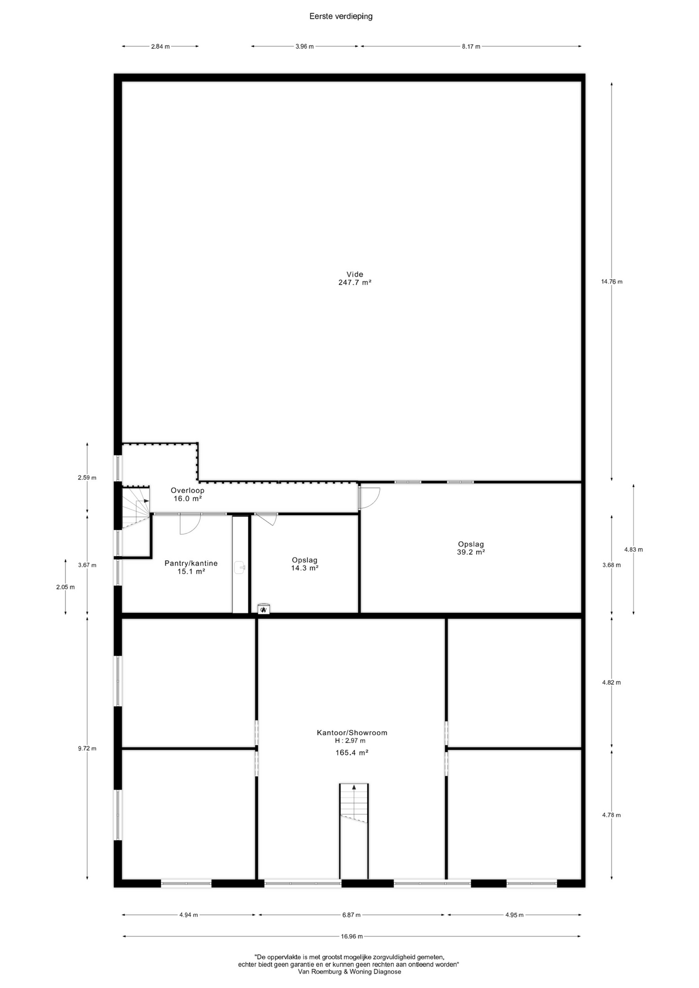
Het object beschikt op de begane grond aan de straatzijde over een fraaie kantoor- of showroom-ruimte met een oppervlakte van in totaal plm. 196 m2. Vanzelfsprekend zij er sanitaire ruimten en een pantry aanwezig. Op de verdieping hierboven is eveneens een kantoorruimte of showroom gelegen ter grootte van plm. 165 m2. Deze is via een ruimte trap vanaf de begane grond te bereiken. De kantoorruimten zijn voorzien van systeemplafonds en voldoende verlichting.

Aan de achterzijde is een ruim magazijn of werkplaats gelegen met een verhuurbare vloer oppervlakte (V.V.O.) van plm. 248 m2 en een vrije hoogte van ruim 6 meter, alsmede een gedeelte opslag ter grootte van plm. 40 m2. Voorzien van een grote elektrische expeditiedeur. Vanuit het magazijn is via een trap de vide op de eerste verdieping te bereiken, die toegang geeft tot de kantine/pantry en een tweetal opslagruimten. De verdieping heeft een oppervlakte van plm. 85 m2.

Het pand is optimaal geïsoleerd en voorzien van een energielabel A++ !

Het geheel is ook zeer eenvoudig geheel als kantoor of voor andere doelen te gebruiken. Door de ligging in de nabijheid van uitvalswegen zoals de A73 en A77 is de Randstad, Duitsland alsmede de rest van Nederland snel te bereiken.

Perceelsoppervlakte 940 m². Totale oppervlakte bebouwde bedrijfsruimte plm. 733 m² BVO.

BIJZONDERHEDEN
* Het object is onderhoudsarm door de toepassing van fraaie materialen
* Bij de bouw is veel aandacht geschonken aan kwalitatief goede materialen en een slim ruimtegebruik

Op grond van het bestemmingsplan is een grote diversiteit aan bedrijfsmatig gebruik toegestaan.

Huurprijs € 5.000,= per maand exclusief BTW. Aanvaarding: in overleg.

  • 733 m2
  • 940 m2

Kenmerken Bolder 3b

Overdracht

StatusVerhuurd
Prijs€ 5.000,- p.m
AanvaardingIn overleg

Oppervlaktes en inhoud

Soort ObjectBedrijfsruimte
Oppervlakte733 m2
Perceeloppervlakte940 m2
Bedrijfshal vrije hoogte628 cm

Parkeergelegenheid

Parkeerplaatsen7

Bouw

BouwvormBestaande bouw
Bouwjaar2008
Bouwjaar toelichting

Overig

Bedrijfshal in units vanaf733 m2
Kantoorruimte in units vanaf733 m2
LocatieBEDRIJVENTERREIN
Aantal lagen2
Onderhoud binnenGoed
Onderhoud buitenGoed

Ligging Bolder 3b

Vergelijkbaar bedrijfsaanbod