Ga naar inhoud

Kovel 1a

5431 ST Cuijk

Beschikbaar

Bezichtiging plannen

€ 850,- p.m

  1. Home>
  2. Bedrijfspanden>
  3. Huur Cuijk Kovel 1a

Perfect afgewerkte representatieve kantoorruimte gelegen op de 1e verdieping in een modern bedrijfsverzamelgebouw Kovel 1A & 1B op het bedrijventerrein “Groot Heijligenberg” te Cuijk, nabij de afslag A73, met goede aansluiting op de A50, A77 en A68.

Het NS-station ligt op nog geen 700 meter afstand.

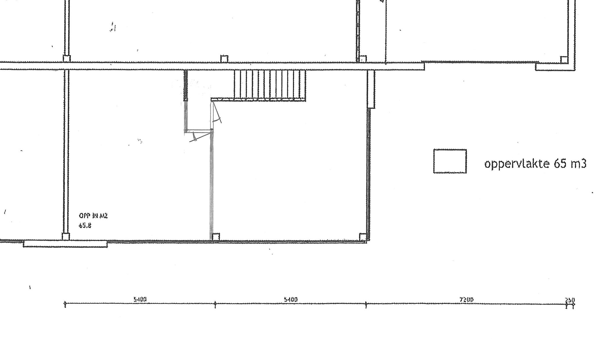
De indeling bestaat uit een gezamenlijke entree/hal met toiletruimte (gezamenlijk met de huurder van de begane grond), meterkast, trapopgang naar de 1e verdieping. Kleine overloop met toegang tot de 2 kantoorruimten van totaal 65 m2.

De kantoren zijn voorzien van vloerverwarming, vloer en raamafwerking, gemeubileerd en voorzien van een airco.

Op het buitenterrein zijn 2 parkeerplaatsen beschikbaar.

Aanvaarding in overleg.

Huurprijs € 850,- per maand exclusief btw en exclusief € 100,- servicekosten excl. btw.

  • 65 m2

Kenmerken Kovel 1a

Overdracht

StatusBeschikbaar
Prijs€ 850,- p.m
AanvaardingDirect
Servicekosten€ 100,- p.m

Oppervlaktes en inhoud

Soort ObjectKantoorruimte
Oppervlakte65 m2

Parkeergelegenheid

Parkeerplaatsen2

Bouw

BouwvormBestaande bouw
Bouwjaar2011
Bouwjaar toelichting

Overig

Kantoorruimte in units vanaf65 m2
LocatieBEDRIJVENTERREIN
Aantal lagen1
Onderhoud binnenGoed
Onderhoud buitenGoed

Ligging Kovel 1a

Vergelijkbaar bedrijfsaanbod